EMCI Silea 45

 

Avec la EMCI Siléa 45, DG forage a la capacité d'intervenir sur le chantier d'accès difficile.

 

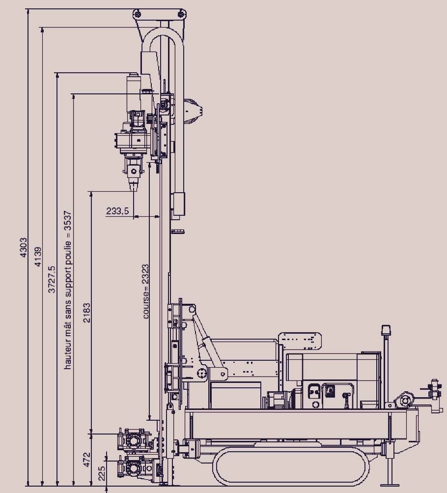
CARACTERISTIQUES :

  • poids : 2700 kg
  • capacité d 'accés : pouvant passer une porte de 83cm. 
  • capacités machine :
    • Préssio 50/60m
    • Carottage 15/20m
    • Pose d'équipements piézométriques 20/30m (suivant le diamètre)